(一)、自洁式空气过滤器(ZLKG型)
1、概述
大型的动力设备如:鼓风机、压缩机组、燃气轮机等设备对除尘的要求较高。因空气中含有大量的尘埃,如未经处理而被吸入,粉尘就会在设备的内部腐蚀、结垢,将增加部件的磨损、管路的阻塞。同时灰尘附着在高速旋转的叶轮上产生震动,破坏原有设备的动平衡,给生产设备造成重大损失。
上海泽尔石化设备有限公司生产的自洁式空气过滤器是在原有的ZLKL四面进风卷帘式过滤器的基础上开发出来的新一代自洁式空气过滤器,该自洁式过滤器较原有过滤器具有以下优点:
●.设备在微电脑控制下实现空气过滤单元的自动清洁,设备实现不停车工作。
●.根据工作状态风量,实现积木组合结构,占地面积小。
●.过滤粉尘的效率高,3μm以上粒子滤除99.9%,5μm以上过滤效率达到100%。
●.阻力损失小,初始阻力损小于150Pa,可设置报警阻力。
●.有效过滤面积大,过滤单元使用寿命长,过滤单元的更换周期可达2年左右。
●.设备能耗低,用电功率只需100-600W。
●.自洁压缩空气耗量小。
●.设备重量轻,约为卷帘结构同容量条件下的1/2-1/3。
●.适应各种恶劣户外环境,在各种沙尘地区及潮湿工况下均不受影响。
2、产品结构特点
●.ZLKG型自洁式空气过滤器的核心部件是进口滤料的滤筒。滤筒具有过滤面积大、阻力小、过滤精度高、过滤效率高、耐潮湿、寿命长等特点。
●.
ZLKG型自洁式空气过滤器采用世界上空压机前过滤新潮的方式,即采用前置滤网的二级过滤方式。前置过滤采用2mm厚的钢板网,下雨即自洁,水冲洗。前置过滤有效减轻了滤筒的负担,延长了滤筒的寿命。.
●.碳钢结构全部经过喷砂表面处理。
●.
ZLKG型自洁式空气过滤器自洁系统由微机电控器、电磁脉冲阀、集气管、喷嘴、文氏管等组成。其特点是口径较大,充分保证吹扫脉冲所需的压缩空气瞬间流量。
●.
为了防止滤筒反吹掉下来的灰尘不被临近滤筒吸附上,采用2个滤筒室并联工作,2个滤筒室同时工作,需要清灰时,其中一组滤芯反洗,其余滤芯正常在工作。为防止滤芯交叉感染,每组滤芯之间设隔板。
●.ZLKG型自洁式空气过滤器控制系统采用PLC控制系统,可直接接入DCS系统。输入输出电路采用模块化设计,抗干扰性强、结构紧凑、性能稳定、可靠。面板采用人机对话,触摸屏操作。人性化设计,用户可现场编程,修改设定参数方便,编程简单易行。本系统的显示器采用EVIEW公司液晶显示模块,内置高精度微压差传感器,并采用高性能长寿命电磁阀等元件,电磁阀膜片终身免费维护。
本系统的突出优点是:摆脱了传统继电器控制,采用了全无触点控制,集数字、模拟、电力电子、弱电强电于一体,性能比一般控制系统较稳定。而且系统可扩展、联锁、远程等。自动控制系统,三种模式,即手动、定时、定差压,并留有4~20mA信号接口。
3、工作原理
过滤过程原理:
自然空气通过空压机的吸气作用,含尘的空气经过一级粗滤网将一些大的杂质如树叶、枯枝等杂质去除,从而粗滤的气体进入设备进气室,经过高效的过滤原件进行过滤。由于重力的惯性扩散及接触阻留等综合作用,尘埃吸附在高效过滤原件上。洁净的空气通过密封垫圈再经过文氏管进入净气室,通过汇合到收集气口,再由收集气口被吸入至风机,以达到空气的完全净化。
自洁过程原理:
空气通过过滤器时,随着过滤时间的推移,附着在过滤原件上的灰尘越来越多,空气通过滤芯时的阻力将越来越大。
当空气通过过滤原件的压力损失超过过滤器的压力损失指标时,PLC控制系统将按照时间的设定逐组进行反吹,当压差达到报警压差值时,PLC将改变控制的方式,自动转换到每间隔30秒(可调)进行一组反吹。(反吹时间为0.1-0.2秒)而其余的工作原件照常工作。从而保证设备不间断工作。
4、工艺流程

5、应用范围
●.
各行业各种类型压缩空气站,特别适用于多级离心空气压缩机。小容量压缩机可多台合用一台自洁式空气过滤器,
大容量压缩机一台配一台为宜;
●.钢铁厂的高炉鼓风机;
●.制氧站的原料空压机;
●.各种容量的燃气轮机;
●.需较长时间运转的柴油机;
●.化纤纺丝工业的空调送风系统;
6、结构形式

7、性能规格

8、主要附件

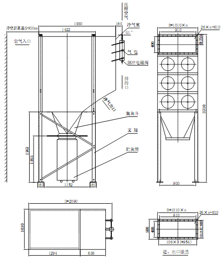
9、外形尺寸图

说明:●.n代表单元数;
●.过滤器是尺寸以ZLKG-Ⅱ为基准,每增加或减少一层滤筒,高度则增加或减少455㎜;每增加或减少一个单元,宽度则增加或减少1010㎜。
●.设备选好型后,其具体安装尺寸以我公司提供的图纸为准。
10、ZLKG-Ⅱ性能规格

11、过.滤.筒
过滤筒是脉冲自洁式空气过滤器的标准配套设备。
由于使用了专门的超细网状过滤表层,高效过滤筒对过滤亚微米颗粒的粉尘具有无与伦比的过滤效率,可达99.99%、0.5μ
m。高效过滤筒提供了最大的空气流量,进一步提高了工作效率,增强了清洁效果,延长了使用寿命,降低了运行成本。
12、自洁清灰工作原理
在正常工作状态下,含尘空气经入口处进入滤筒式过滤器,并通过滤筒,粉尘过滤在滤筒的表面上,净化的空气经过滤筒中心并由洁净空气箱出口处排出。当含尘气进入尘气箱后,微细灰尘被抽吸在滤芯表面,随时间的延长,滤芯表面灰尘增厚,滤芯内外压差增大,当膜合表压差达到某一整定值时,“时序脉冲分配控制器”自动启动,通过电磁阀控制“快速脉冲放气阀”在瞬间用0.5-0.7M
P
a的压缩空气向滤芯自里向外进行有程序的脉冲反冲洗,当滤芯冲洗干净时,内外压差小于某一整定值时,冲洗过程即自行停止,由于压缩空气流是脉冲式的通过“文丘里管”向滤芯引射,所以,不仅耗气量少,而且爆发力强,冲洗效果好。滤筒式除尘器自动清洁过滤筒,延长了过滤器的使用寿命,改进了工作性能。同时又不影响进气设备的正常进行。
